Mieszkanie 70,7 m2 na sprzedaż
+7
35 dni temu
564 893 PLN
7 990 PLN/m2
7 990 PLN/m2
Rynek pierwotny
Blok 2025 r.
70,7 m2
Parter z 3
3 pokoje
Szczegóły
- Materiał budynkuCegła
- Forma własnościPełna własność
Opis nieruchomości
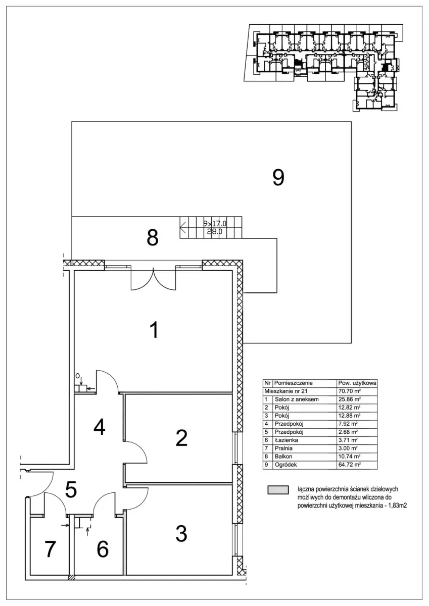
Mam przyjemność zaprezentować Państwu przepiękne 3 pokojowe mieszkanie w stanie deweloperskim o pow. 70,70 m2 z dużym ogrodem o pow. 64,72 m2 i balkonem w Ciechocinku w pobliżu uzdrowisk i tężni solankowych.
Szukasz nieruchomości w jednej z najbardziej znanych miejscowości uzdrowiskowych w Polsce. A może planujesz zakup inwestycyjny w miejscu, które co roku odwiedzają tysiące kuracjuszy?
TA OFERTA JEST WŁAŚNIE DLA CIEBIE!!
Mieszkanie znajduje się na wysokim parterze 3-piętrowego budynku oddanego do użytkowania w 2025 r.
Mieszkanie składa się z:
- Salon z kuchnią o pow. 25,86 m2
- Pokój 1 o pow. 12,82 m2
- Pokój 2 o pow. 12,88 m2
- Przedpokój o pow. 10,60 m2
- Łazienka o pow. 3,71 m2
- Pralnia o pow. 3 m2
Nieruchomość oddana do użytkowania!!
Atuty nieruchomości:
• wysokość czynszu ok. 10 zł za m2
• mieszkania wyposażone w ogrzewanie podłogowe
• okna antysmogowe 3-szybowe
• rolety zewnętrzne
• nieopodal nieruchomości znajdują się uzdrowiska oraz tężnie solankowe
• w sąsiedztwie nieruchomości znajdują się dworzec PKP, dworzec autobusowy, a także sklepy, restauracje.
Istnieje możliwość dokupienia miejsca postojowego w hali garażowej oraz komórki lokatorskiej.
Poszukujesz innego metrażu? W ofercie posiadam mieszkania o powierzchni od 42,92 m2 do 70,70 m2. Skontaktuj się, a dobiorę ofertę do Twoich oczekiwań.
W przypadku, gdy potrzebujesz pomocy w uzyskaniu kredytu na zakup mieszkania zapraszam do kontaktu celem ustalenia spotkania z ekspertem kredytowym, który porówna ofert wielu banków specjalnie dla Ciebie bez żadnych opłat.
KUPUJĄCY NIE PŁACI PROWIZJI !!
Zdjęcia przedstawiają przykładowe możliwości wykończenia wnętrza.
Nr lokalu: M21
Ogłoszenie nie stanowi oferty w rozumieniu prawa cywilnego.
Zainteresowany? Zadzwoń teraz i umów się na spotkanie online
Media
Internet
Ogrzewanie
Miejskie
Informacje dodatkowe
Taras
Lokalizacja
Osoba kontaktowa
Arkadiusz Wąsowicz
Doradca ds. nieruchomości
Expander Advisors
Zadzwoń
Napisz e-mailOferta nr
1769833
EX553045
EX553045
Masz pytania? Napisz do nas!







