14 650 PLN/m2
Rynek pierwotny
2024 r.
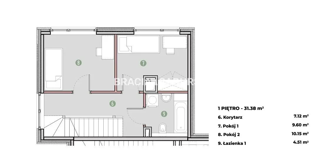
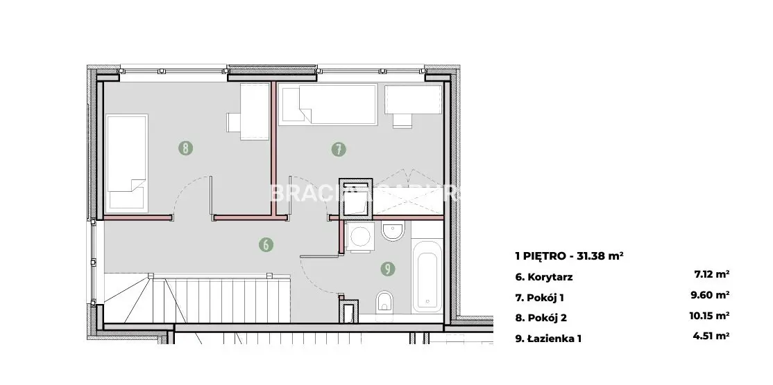
94,68 m2
Parter z 2
4 pokoje
Szczegóły
- Pokrycie dachuInne
- Forma własnościPełna własność
Opis nieruchomości
| Bracia Sadurscy to oficjalny przedstawiciel handlowy dewelopera - kupując z nami nie płacisz prowizji i ukrytych kosztów. Zapraszamy do zapoznania się z ofertą nowoczesnych domów w stanie deweloperskim, zlokalizowanych w prestiżowej dzielnicy Krakowa - Wola Justowska. Unikalne osiedle willi miejskich zaprojektowane na wzór luksusowego resortu wypoczynkowego. Nowoczesny Styl i Komfort Życia Każdy z oferowanych apartamentów to połączenie estetyki, funkcjonalności i ekologii. Trzykondygnacyjne wille dostępne w trzech wariantach : 94 m² 117 m² 151 m² Każda z własnym ogródkiem i loggią, zapewniają przestrzeń idealną zarówno dla rodzin, jak i osób ceniących komfortowe życie w bliskości natury. Ekologiczne i Energooszczędne Rozwiązania EKOLOGICZNE GOSPODARSTWO NA TERENIE OSIEDLA : Mieszkańcy będą mieli dostęp do świeżych owoców, ziół i warzyw z prywatnego, ekologicznego gospodarstwa rolnego UR Farming. Inwestycja powstaje z myślą o przyszłości, oferując: Ściany prefabrykowane MABUDO ROBUST z doskonałą termoizolacją PIR (współczynnik 0,022 W/m*K). Centralny oczyszczacz powietrza PARTICLE+ w standardzie HEPA H13. Rekuperatory marki THESSLA GREEN z serii AirPack4. Aluminiowe okna z elektronicznie sterowanymi żaluzjami. Panele fotowoltaiczne, ładowarki do samochodów elektrycznych i pompy ciepła. Luksus i wygoda codziennego życia : Ekskluzywny klub fitness z basenem i SPA . Ekologiczny sklep z bistro i kawiarnią. Prywatny park z siedmioma strefami rekreacyjnymi. Strefa coworkingowa, leśne przedszkole, gabinet kosmetyczny, barber. Centrum usługowe: ogrodnicze, pralnicze, pet sitting, kwiaciarnia. Idealna Lokalizacja dla Często Podróżujących Bliskość przystanku Szybkiej Kolei Aglomeracyjnej Kraków Zakliki zapewnia szybki dojazd: Do Dworca Głównego w 11 minut. Na lotnisko Kraków-Balice w 5 minut. Życie w Harmonii z Naturą Osiedle łączy nowoczesne technologie z bliskością natury. To idealne miejsce dla osób ceniących zdrowy styl życia, energooszczędność i rodzinną atmosferę. Zapraszamy do kontaktu w celu poznania szczegółów i umówienia prezentacji! Barbara Nazarewicz 515-634-552 ::DODATKOWE INFORMACJE | Rodzaj budynku: nowe budownictwo | Gaz: brak | Woda: jest | Dojazd: ASFALTOWA | Otoczenie: zabudowa mieszana | Ogrzewanie: pompa ciepła | Komunikacja publ.: autobus | Winda: NIE | Opłaty w czynszu: - | Rodzaj mieszkania: jednopoziomowe | Garaż: możliwość kupna | Stan lokalu: deweloperski | Okna: PCV 3 komorowe | Instalacje: nowe | Balkon: mały | Powierzchnia ogródka [m2]: 38,0900 | Zagosp. działki: zagospodarowana | Kształt działki: kwadrat | Pokrycie dachu: inne | Stan budynku: do wykończenia | Garaż: brak | Rok budowy: 2024 | Liczba pokoi: 4 | Liczba sypialni: 2 | Ściany pokoi: tynk | ::LINK DO STRONY | sadurscy.pl/offer/BS2-MS-306267 ::KONTAKT DO AGENTA | Barbara Nazarewicz | +48 515-634-552 | basia@sadurscy.pl ::DANE BIURA | Oddział BS2, Rynek Pierwotny | Przewóz 47 | 30-081 Kraków | 12 630-90-45 -------------------------- ::GRATIS | Nasza prowizja zawiera: koszt przedwstępnej notarialnej umowy sprzedaży nieruchomości z rynku wtórnego. ::GWARANCJA | Gwarancja zwrotu zadatku. Więcej informacji na sadurscy.pl/zwrot-zadatku/ | Oferta wysłana z systemu Galactica Virgo
Ogrzewanie
Pompa ciepła
Lokalizacja
BS2-MS-306267-2










