10 727 PLN/m2
Rynek pierwotny
46,52 m2
Parter z 1
3 pokoje
Szczegóły
Opis nieruchomości
Nowa inwestycja mieszkaniowa w Siechnicach/12km do centrum Wro✨
Bezpośrednio od developera
Mieszkanie z rynku pierwotnego BEZ Prowizji i BEZ podatku 2% PCC
Od 448 000 PLN | Możliwość zakupu w harmonogramie 20/80 | Bez pozwolenia dla obcokrajowców
Dane nieruchomości
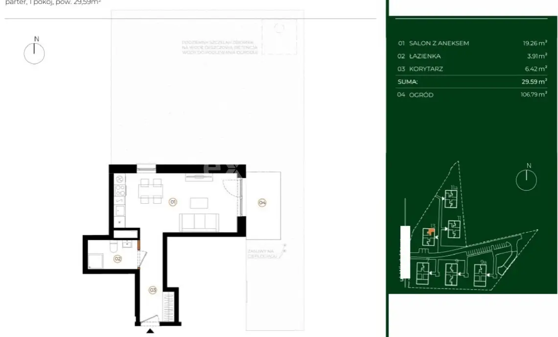
Symbol: B23-1(G)
Cena: 499 000 PLN + 2 m.p. w cenie!
Cena za metr: 10 700 PLN
Metraż: 46.52 m2
Liczba pokoi: 3
Piętro: 0
Ogród: Tak
Marzysz o spokojnym miejscu w otoczeniu lasów i jezior, a jednocześnie z dostępem do pełnej infrastruktury miejskiej?
? W malowniczych Siechnicach powstaje wyjątkowe osiedle 202 mieszkań - idealne dla rodzin, par i singli ceniących styl życia w rytmie natury.
? Eleganckie domy w zabudowie bliźniaczej
? Plac zabaw, strefa relaksu, ścieżki spacerowe i rowerowe
?️ Ogrodzony teren, drzwi antywłamaniowe
? Świetna komunikacja - blisko stacje PKP
? Garaże i indywidualne miejsca parkingowe
➡️ Ceny już od 448 000 PLN
➡️ Metraże: 46-162 m²
➡️ Możliwość zakupu w harmonogramie 20/80 - płacisz 20% teraz, resztę przy odbiorze
? Zainteresowany? Skontaktuj się z doradcą:
Hlib Syromiatnikov
? 798 999 448
? hlib.syromiatnikov@expander.pl
Zainteresowany? Zadzwoń teraz i umów się na spotkanie online
Ogrzewanie
Jest
Lokalizacja
EX666711



