12 690 PLN/m2
Rynek pierwotny
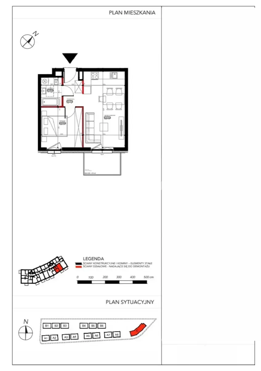
38,9 m2
Piętro 2 z 2
2 pokoje
Szczegóły
- Forma własnościPełna własność
Opis nieruchomości
Nowe, 2-pokojowe mieszkanie z przestronnym balkonem na Lipie Piotrowskiej we Wrocławiu! To idealna oferta dla singla, pary lub jako inwestycja na start. Odkryj funkcjonalną przestrzeń, która spełni Twoje marzenia o własnym kącie.
Lokalizacja:
Lipa Piotrowska to zielone osiedle w północnej części Wrocławia. Bliskość Parku Widawskiego i rzeki sprawia, że otoczenie sprzyja aktywnościom na świeżym powietrzu. Szybki dojazd do centrum i innych dzielnic zapewnia Węzeł Widawa A8 (1.5 km) oraz bliskie przystanki autobusowe (linie 108, 111, 143, 244 w odległości 100-150 m). W promieniu 2 km znajdziesz pełną infrastrukturę: sklepy (Carrefour, Dino), przedszkola i nowoczesną szkołę. To miejsce, gdzie miejska wygoda spotyka się z naturą.
O inwestycji:
Kameralne osiedle o niskiej zabudowie, harmonijnie wpisane w otoczenie domów jednorodzinnych. Nowoczesna architektura, zaprojektowana dla Twojej prywatności i komfortu. Czekają tu zielone strefy, place zabaw, cichobieżne windy i wygodne miejsca parkingowe (naziemne i w garażu podziemnym). Łącznie zaprojektowano 150 mieszkań. To po prostu idealne miejsce do życia! Sprawdź, zanim zniknie.
O mieszkaniu:
Lokal: C/K2/10 (Budynek C)
Typ: 2-pokojowe
Powierzchnia: 38,90 m²
Piętro: II - z balkonem 4,95 m²!
Układ: Funkcjonalny przedpokój, przestronny salon z aneksem, ustawna sypialnia oraz komfortowa łazienka. Stwórz tu swój wymarzony, nowy dom.
Ekspozycja: Południowy-Wschód, zapewniająca doskonałe doświetlenie.
Standard: Deweloperski, rolety zewnętrzne.
Udogodnienia: Wideofon, stojaki na rowery.
Termin oddania Budynku C: III kwartał 2025 r.
Dodatkowe opcje:
- Miejsce postojowe (naziemne lub w garażu podziemnym) - od 30 000 zł
- Komórka lokatorska - od 5 000 zł/m²
Dlaczego właśnie ze mną?
Twoje Korzyści BEZPOŚREDNIO!
- 0% prowizji od Kupującego i brak podatku PCC (2%) - oszczędzasz tysiące złotych już na starcie!
- Pakiety wykończenia "pod klucz" od 1100 zł/m² - wprowadź się bez stresu i zbędnych formalności!
- Kompleksowe wsparcie: Bezpłatny doradca kredytowy, pomoc w negocjacjach, pełna obsługa transakcji od A do Z.
- Pełna wiedza i wybór: Dostęp do wszystkich lokali w tej inwestycji oraz szerokiej oferty nowych mieszkań we Wrocławiu.
- Oszczędność czasu i nerwów: Zajmuję się wszystkimi szczegółami, Ty skup się na marzeniach!
Działaj teraz!
Zadzwoń i umów się na prezentację!
Kontakt:
Piotr Pietrzak
Ekspert ds. Nieruchomości
tel. +48 604 228 652
e-mail: piotr.pietrzak@expander.pl
Zainteresowany? Zadzwoń teraz i umów się na spotkanie online
Ogrzewanie
Gazowe
Informacje dodatkowe
Winda
Lokalizacja
EX469623


