7 550 PLN/m2
Rynek pierwotny
124,5 m2
330 m2
5 pokoi
Szczegóły
- Forma własnościPełna własność
Opis nieruchomości
DOM W ZABUDOWIE BLIŹNIACZEJ PRZY LESIE W PRESTIŻOWEJ LOKALIZACJI OSIELSKO
ATUTY NIERUCHOMOŚCI
- prestiżowa lokalizacja
- sąsiedztwo lasu
- ustawny rozkład 4 sypialni na górze
- nowoczesne osiedle
CHARAKTERYSTYKA:
Osiedle zlokalizowane w atrakcyjnej i zielonej części Osielska. Nowoczesne osiedle 2 domów w zabudowie bliźniaczej i 3 doków jednorodzinnych. Do wyboru kupującego 2 propozycje układu, strona prawa lub lewa oraz wielkość działki - ok 330m2 i 270 m2. Do października 2025 zostanie oddany do użytkowania.
Domy w stanie deweloperskim z ogrzewaniem gazowym, podłogowym. Na zewnątrz w pełni wykończona elewacja, wykostkowany taras, rolety zewnętrzne, ogrodzenie.
W skład nieruchomości wchodzi:
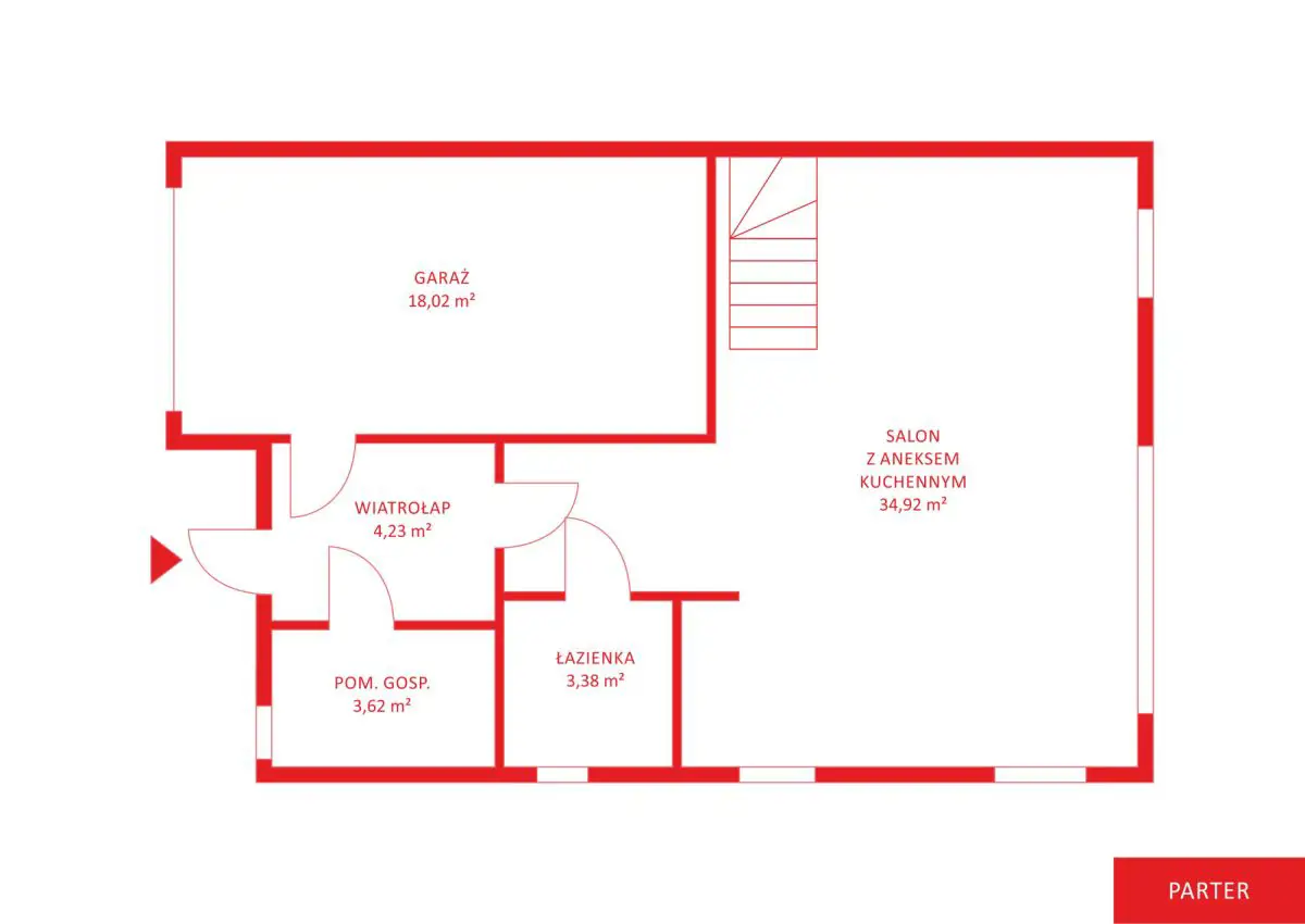
Parter- 64,17m2:
- Salon z aneksem kuchennym
- WC
- Pomieszczenie gospodarcze
- Hol
- Schody
- Garaż- 18m2
I piętro- 60,28m2:
- 4 sypialnie
- Łazienka
- Pralnia
- Korytarz
Do oferowanego lokalu przynależy działka o powierzchni ok 330m2. Środkowe bliźniaki usytuowane są na działkach ok 270m2- 940 tyś zł.
LOKALIZACJA:
Jedna z bardziej prestiżowych lokalizacja w okolicy Bydgoszczy - Osielsko, bardzo dobrze rozwijająca się miejscowość. W okolicy lasy i tereny spacerowe. Wielkim atutem będzie szybki dojazd do Centrum miasta Bydgoszcz. W niedalekiej odległości i otoczeniu zielni mamy tu pełną infrastrukturę usługowo-handlowa w tym: szkoły, przedszkola, apteki i wiele innych niezbędnych punktów handlowo -usługowych
Zapraszam na prezentację.
Kacper Zmudziejewski
PH355302
Ogłoszenie ma charakter wyłącznie informacyjny i nie stanowi oferty handlowej w rozumieniu Kodeksu Cywilnego.
Ogrzewanie
Gazowe
Lokalizacja
PH355302




