15 950 PLN/m2
Rynek pierwotny
Blok 2024 r.
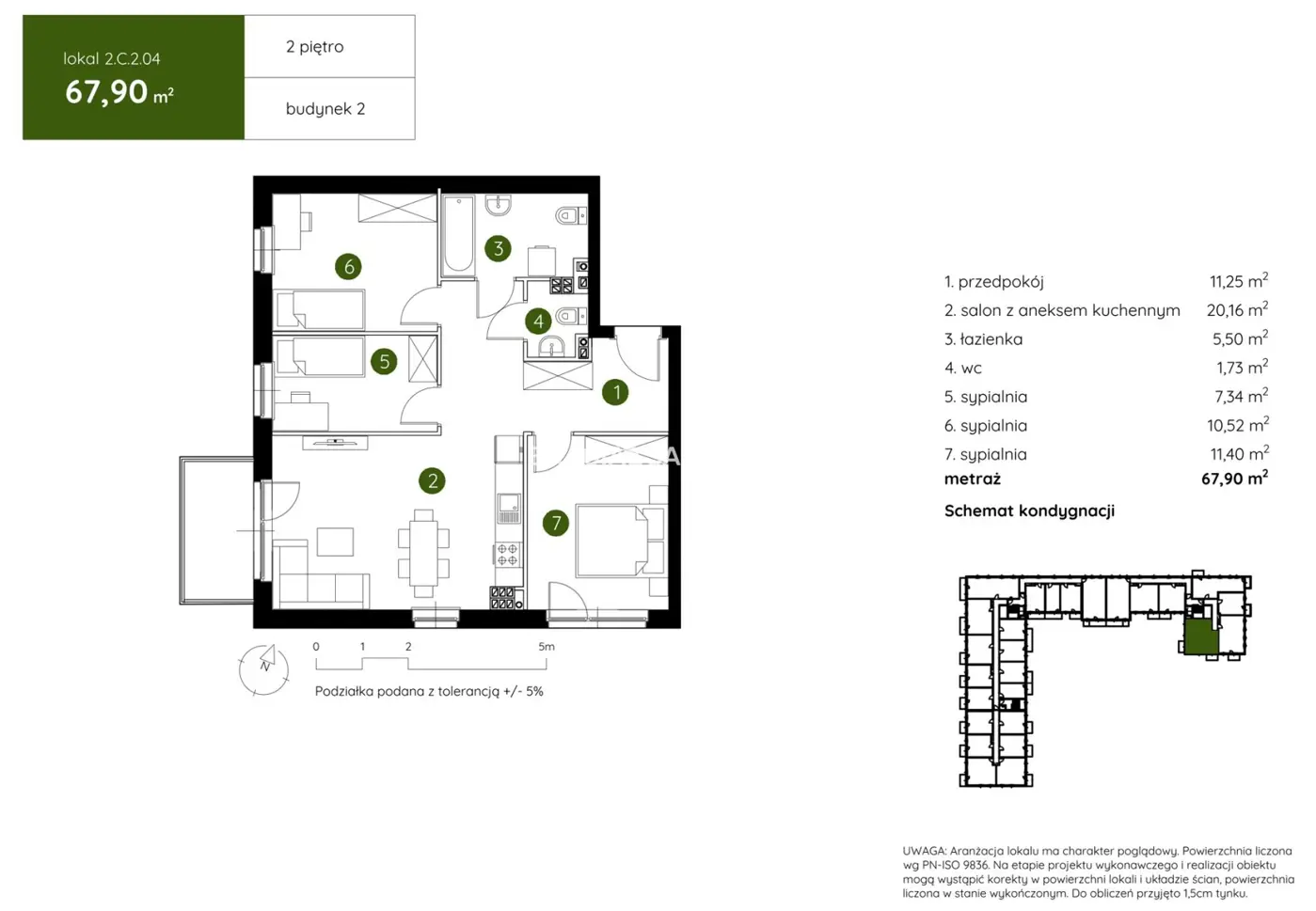
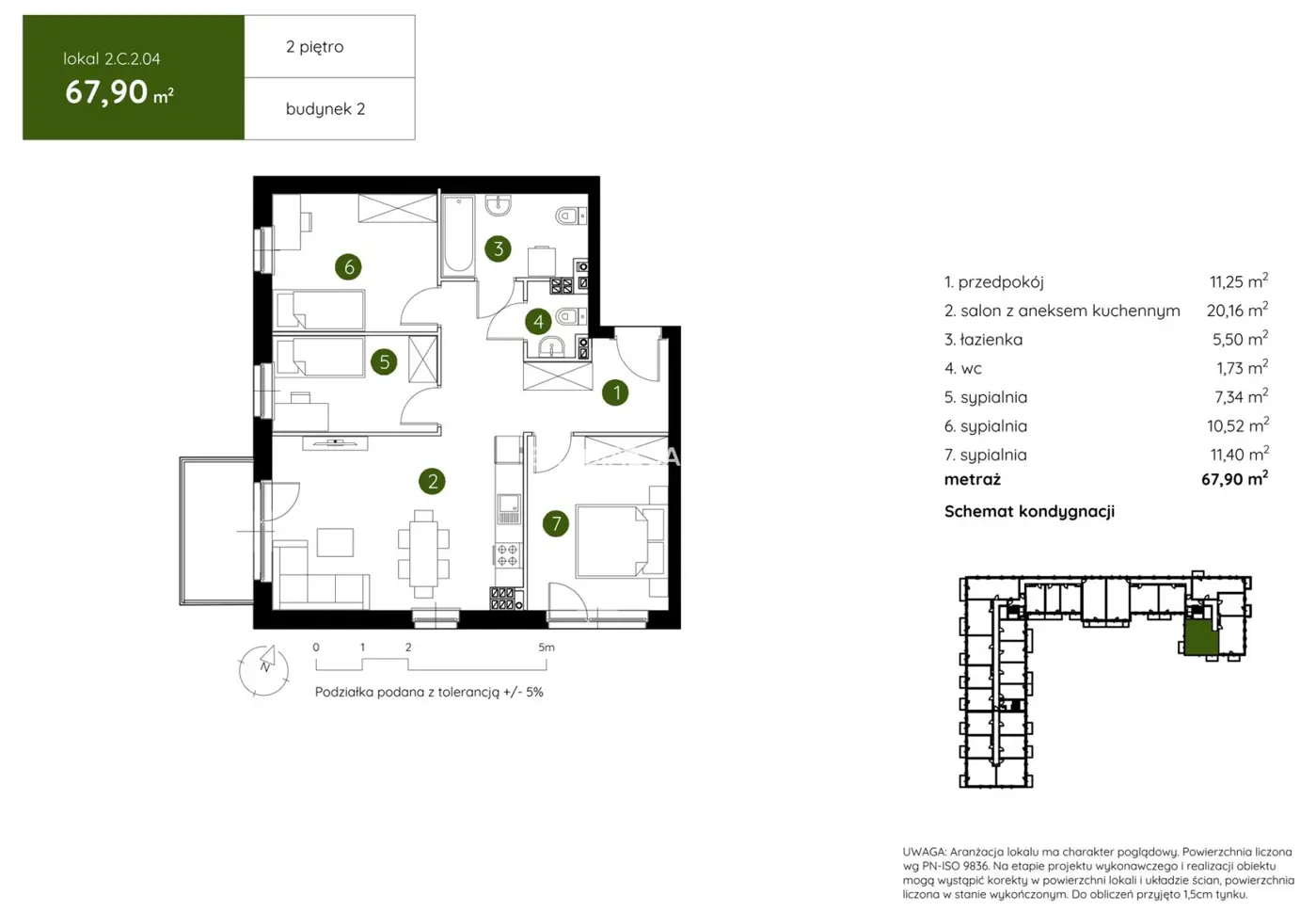
67,9 m2
Piętro 2 z 3
4 pokoje
Szczegóły
- Materiał budynkuPustak
- Typ kuchniAneks
- OknaPlastikowe
Opis nieruchomości
| Z ogromną przyjemnością przedstawiamy Państwu ofertę mieszkania na sprzedaż w malowniczym rejonie Doliny Prądnika, na północy Krakowa, blisko granicy z gminą Zielonki. Nowoczesne osiedle otoczone jest rozległymi terenami zielonymi, co umożliwia codzienny kontakt z naturą i zapewnia wytchnienie od intensywnego miejskiego życia w centrum miasta. Osiedle zostało zaprojektowane z myślą o rodzinach, parach oraz singlach, oferując szeroki wybór mieszkań o powierzchni od 26 do 73 m², w układach 1-, 2-, 3- i 4-pokojowych. Dbałość o komfort mieszkańców przejawia się w wysokiej jakości przestrzeni wspólnych, które sprzyjają nawiązywaniu sąsiedzkich relacji: skwer z ławeczkami, plac zabaw... Budynki nowej inwestycji mające 3 i 4 kondygnacje, wyróżniają się kameralną architekturą, harmonizującą z okolicą. Przestronność obiektów gwarantuje mieszkańcom poczucie prywatności. Zalety: Home Management System to zaawansowana technologia inteligentnego domu, która umożliwia m.in. zarządzanie ogrzewaniem, oświetleniem i zaworami wody. Pakiet antysmogowy w postaci filtrów montowanych w nawiewnikach okiennych dba o czystość powietrza we wnętrzach mieszkań. Wysoki standard wykończenia części wspólnych obejmuje trwałe płytki gresowe, dekoracyjne panele imitujące drewno oraz energooszczędne oświetlenie LED. Mieszkania na parterze posiadają tarasy z ogrodami o powierzchni do 123 m², natomiast mieszkania na wyższych kondygnacjach oferują przestronne balkony. Termoizolacyjne łączniki balkonowe zapobiegają utracie ciepła, co przekłada się na oszczędności energetyczne. Portfenetrowe okna zapewniają doskonałe doświetlenie wnętrz. Na terenie osiedla zostanie zainstalowana stacja ładowania pojazdów elektrycznych, z myślą o mieszkańcach korzystających z ekologicznych środków transportu. Zielone dachy budynków będą nie tylko estetyczne, ale również poprawią jakość powietrza i obniżą temperaturę otoczenia. Prądnik biały to doskonale skomunikowana okolica, idealne miejsce dla osób szukających spokoju i bliskości natury, z jednoczesnym dostępem do nowoczesnych rozwiązań technologicznych. Serdecznie zapraszam do kontaktu ::DODATKOWE INFORMACJE | Kategoria oferty: Mieszkania dla rodzin z dziećmi | Rodzaj budynku: blok | Parking strzeżony (odległość w metrach) [m]: 300 | Dozór budynku: monitoring | Głośność: umiarkowanie ciche | Plac zabaw: TAK | Widok: na osiedle | Gaz: brak | Woda: ciepła - miejska | Dojazd: asfalt | Otoczenie: działki zabudowane | Ogrzewanie: C.O. miejskie | Linie telefoniczne: TAK | Internet: TAK | Komunikacja publ.: autobus miejski | Odległość do komunikacji publicznej [m]: 300 | Odl. do sklepu [m]: 400 | Odl. do szkoły [m]: 1000 | Odl. do przedszkola [m]: 500 | Winda: TAK | Drzwi antywłamaniowe: TAK | Rodzaj mieszkania: jednopoziomowe | Garaż: garaż pod budynkiem | Stan lokalu: deweloperski | Okna: PCV | Instalacje: KOMPUTEROWA, TELEFONICZNA | Balkon: jest | Rok budowy: 2024 | Liczba pokoi: 4 | Wysokość pomieszczeń [m]: 2,5000 | Podłogi pokoi: wylewka | Ściany pokoi: tynk | Typ kuchni: aneks kuchenny - połączony z jadalnią | Rodzaj kuchni: aneks kuchenny połączony z jadalnią i salonem | Podłoga kuchni: wylewka | Typ łazienki: razem z wc | Glazura łazienki: bez glazury | Podłoga łazienki: wylewka | Ściany łazienki: tynk | Glazura WC: bez glazury | Podłoga WC: wylewka | Ściany WC: tynk | Liczba przedpokoi: 1 | Podłoga przedpokoi: wylewka | Ściany przedpokoi: tynk | ::LINK DO STRONY | sadurscy.pl/offer/BS2-MS-304402 ::KONTAKT DO AGENTA | Marzena Mokrzycka | +48 790-804-186 | marzena@sadurscy.pl ::DANE BIURA | Oddział BS2, Rynek Pierwotny | Przewóz 47 | 30-081 Kraków | 12 630-90-45 -------------------------- ::GRATIS | Nasza prowizja zawiera: koszt przedwstępnej notarialnej umowy sprzedaży nieruchomości z rynku wtórnego. ::GWARANCJA | Gwarancja zwrotu zadatku. Więcej informacji na sadurscy.pl/zwrot-zadatku/ | Oferta wysłana z systemu Galactica Virgo
Media
Telefon
Internet
Ogrzewanie
Miejskie
Informacje dodatkowe
Winda
Łazienka z WC
Lokalizacja
BS2-MS-304402-3




