13 500 PLN/m2
Rynek pierwotny
2025 r.
74,22 m2
Parter z 3
Szczegóły
- OknaAluminiowe
- Forma własnościPełna własność
Opis nieruchomości
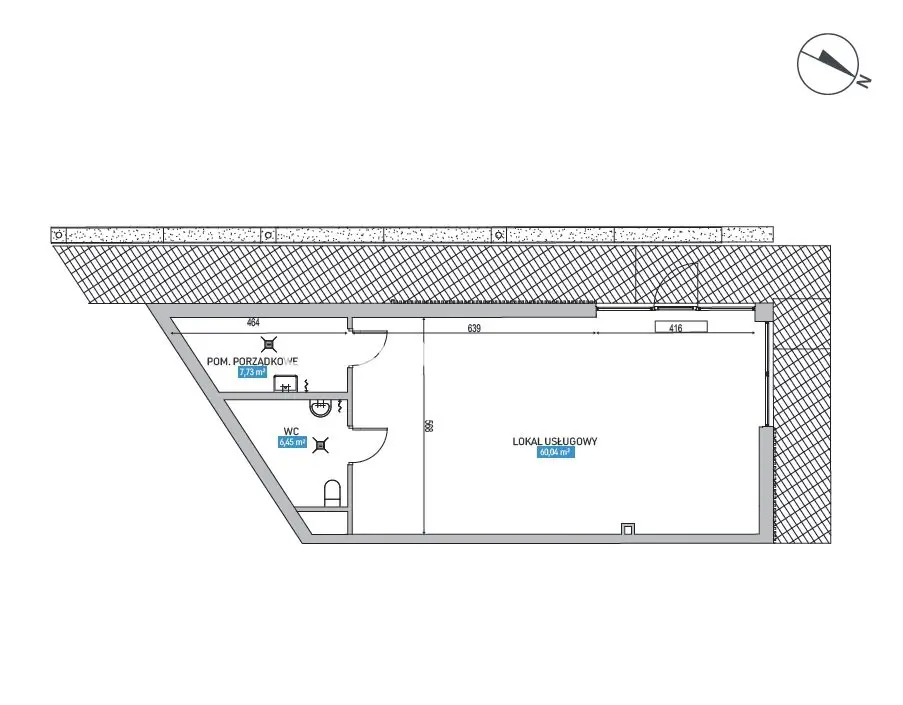
| Zdjęcia należą do właściciela oferty. Lokal handlowo-usługowy przy ul. Kobierzyńskiej/Zalesie - idealne miejsce na Twój biznes! Na sprzedaż lokal handlowo-usługowy o powierzchni 74,22 m2, który doskonale nadaje się na prowadzenie różnorodnej działalności, np. salonu kosmetycznego, biura czy placówki medycznej. Usytuowany na parterze nowoczesnego budynku mieszkalno-usługowego. Lokal jest w stanie deweloperskim, posiada niezależne wejście z ulicy, a jego wysokość wynosi 3,4 m. Lokal będzie posiadał duże witryny od ulicy Kobierzyńskiej, które zapewn i ą doskonałą ekspozycję i dostęp naturalnego światła. Inwestycja nazywa się Willa Zalesie, zaprojektowano w niej 36 lokali mieszkalnych oraz 5 lokali użytkowych. Dostępne media: woda, kanalizacja, prąd, ogrzewanie, internet. W budynku znajduje się garaż podziemny z miejscami parkingowymi do zakupu . Lokal usytuowany w dzielnicy Ruczaj przy ruchliwej ulicy. W pobliżu rozwinięta infrastruktura handlowo-usługowa: sklepy spożywcze, restauracje, punkty usługowe. Blisko przystanek autobusowy(300 m) oraz tramwajowy(900 m). Szybki wyjazd na obwodnicę Krakowa. Dodatkowe informacje: Termin oddania lokalu do użytku: koniec 2025 r. Istnieje możliwość połączenia lokalu z sąsiednimi, co daje możliwość stworzenia większej przestrzeni użytkowej. Cena: Lokal: 1 001 970 zł + VAT Miejsce postojowe w garażu podziemnym: 45 000 zł + VAT Bez PCC oraz prowizji Agent do kontaktu - Sebastian tel: +48 501 227 010 ::DODATKOWE INFORMACJE | Rodzaj budynku: blok | Dojazd: asfalt | Komunikacja publ.: autobus miejski, tramwaj | Winda: TAK | Usytuowanie: dwustronne | Możliwość parkowania: tak | Własny parking: TAK | Podziem. miejsc parking.: 15 | Opis miejsc parking.: podziemny parking | Położenie lokalu: ruchliwa ulica | Witryna wystawowa: duża | Wejście: od ulicy | Podłogi: wylewka | Opłaty w czynszu: - | Opłaty wg liczników: woda, prąd | Stan lokalu: deweloperski | Okna: aluminiowe | Instalacje: dobre | Powierzchnia użytkowa [m2]: 74,2200 | Rok budowy: 2025 | Rodzaj lokalu: jednopoziomowy | Przeznaczenie lokalu: usługowy, handlowy, handlowo-usługowy, biurowy, biurowo - magazynowy | Pow. sali sprzedaży [m2]: 60 | Miejsce na reklamę: na witrynie | Wysokość pomieszczeń [m]: 3,4000 | Liczba pomieszczeń biurowych: 1 | Powierzchnia pomieszczeń biurowych od [m2]: 60 | Liczba pomieszczeń socjalnych: 1 | Liczba pomieszczeń sanitarnych: 1 | ::LINK DO STRONY | sadurscy.pl/offer/BS3-LS-306970 ::KONTAKT DO AGENTA | Sebastian Steranka | +48 501-227-010 | sebastian@sadurscy.pl ::DANE BIURA | Oddział BS3, Przewóz | Przewóz 47/1 piętro | 31-509 Kraków | 12 429-11-00 Pośrednik odpowiedzialny zawodowo za wykonanie umowy pośrednictwa: Dariusz Sadurski (licencja nr: 803) -------------------------- ::GRATIS | Nasza prowizja zawiera: koszt przedwstępnej notarialnej umowy sprzedaży nieruchomości z rynku wtórnego. ::GWARANCJA | Gwarancja zwrotu zadatku. Więcej informacji na sadurscy.pl/zwrot-zadatku/ | Oferta wysłana z systemu Galactica Virgo
Ogrzewanie
Jest
Droga dojazdowa
Droga asfaltowa
Informacje dodatkowe
Parking
Lokalizacja
BS3-LS-306970





