10 797 PLN/m2
Rynek pierwotny
Bliźniak 2024 r.
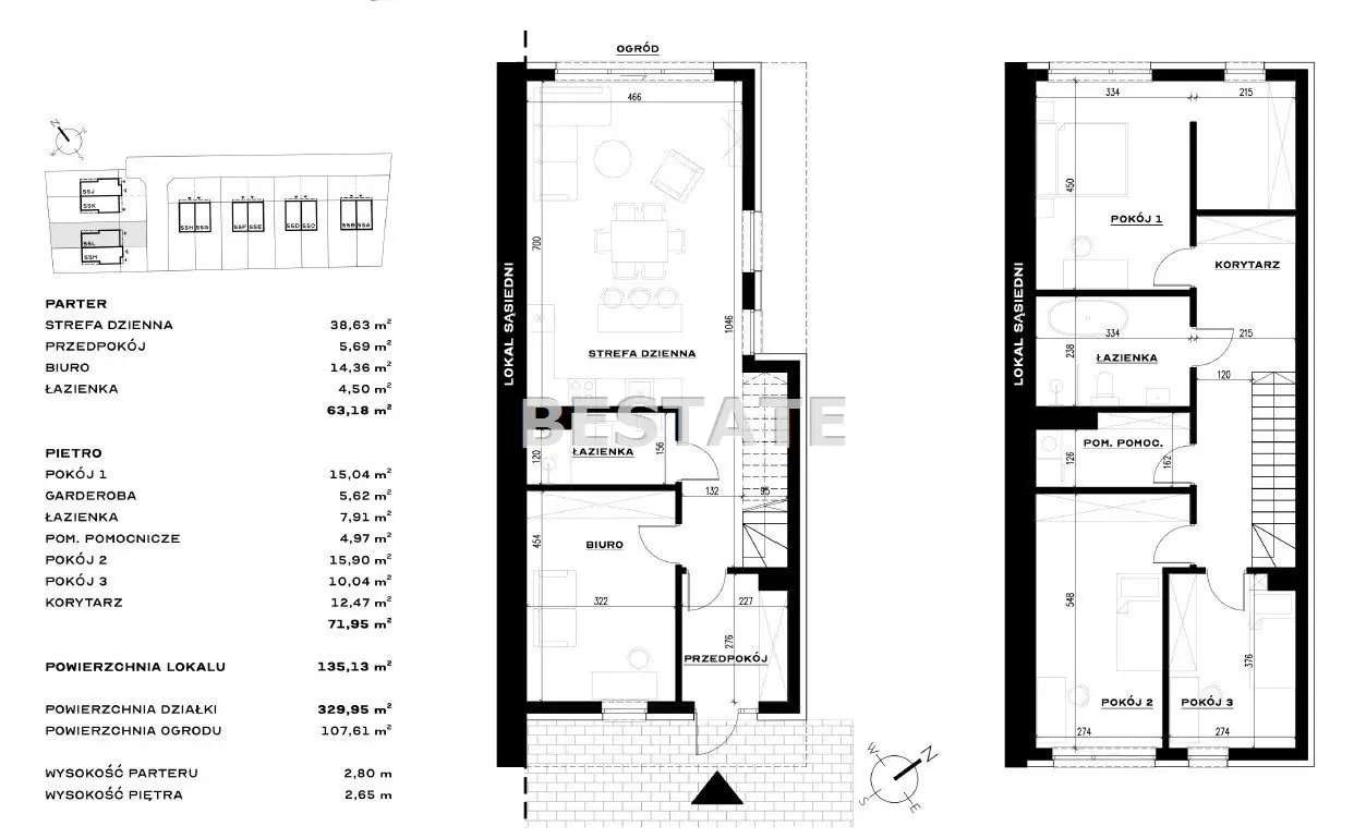
135,13 m2
330 m2
4 pokoje
Szczegóły
- OknaPlastikowe
- Pokrycie dachuDachówka bitumiczna
- Stan wykończeniaDo wykończenia
Opis nieruchomości
BEZPOŚREDNIO od dewelopera, brak prowizji oraz podatku 2% PCC. Posiadamy ponad 90 inwestycji we Wrocławiu i okolicach, zapytaj o pozostałe. Bezpłatna pomoc przy kredytowaniu. Inwestycja składa się z sześciu budynków w zabudowie bliźniaczej, łącznie z dwunastu domów, o powierzchniach od 90- 130 m.kw. Każdy budynek ma do dyspozycji dwa miejsca postojowe przed budynkiem lub garaż i jedno miejsce postojowe. Prezentowana oferta domu to 135,13 m.kw, składa się z salonu z kuchnią w aneksie, trzech sypialni, dwóch łazienek i garderoby. Powierzchnia działki 330 m.kw ( ogrodu 107m.kw) Odbiór IV kwartał 2025r Świetna lokalizacja w pobliżu znajdują się sklepy, przystanek autobusowy 100 m, 5 minut do obwodnicy S8, przedszkole, szkoła, przychodnia. Zapraszamy po szczegóły. Kontakt: Renner Agnieszka BESTATE Wrocław tel: 602 459 354 e-mail: arenner@bestate.com.pl Nr licencji: 22004 www.bestate.com.pl Pośrednik odpowiedzialny zawodowo za wykonanie umowy pośrednictwa: Agnieszka Renner (licencja nr: 22004) Oferta wysłana z systemu Galactica Virgo
Media
Prąd
Ogrzewanie
Gazowe





