14 989 PLN/m2
Rynek pierwotny
Blok 2024 r.
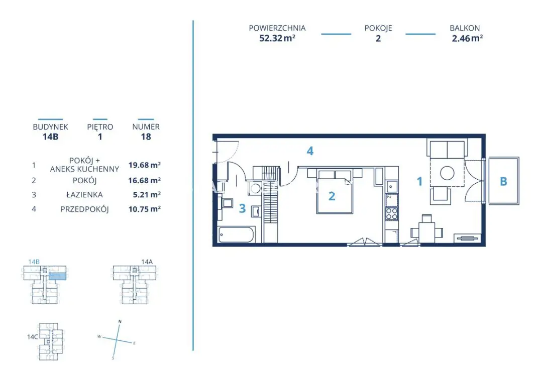
52,32 m2
Piętro 1 z 3
2 pokoje
1 łazienka
Szczegóły
- Typ kuchniAneks
- OknaPlastikowe
- Forma własnościPełna własność
Opis nieruchomości
| NOWA INWESTYCJA DEWELOPERSKA W DOSKONAŁEJ LOKALIZACJI - OSIEDLE RUCZAJ MIESZKANIA GOTOWE DO UŻYTKOWANIA ( KLUCZE) Kameralne osiedle 3 budynków mieszkalnych z niską trzypiętrową zabudową. Każde mieszkania posiada balkon lub ogródek Metraże od 32m2 - 70m2 (-1,-2,-3, pokojowe) Miejsca postojowe zewnętrze oraz w garażu podziemnym Inwestycja budowana w tradycyjnej technologii. Mieszkania sprzedawane w stanie deweloperskim (tynki gipsowe, wylewki, instalacje). Ogrzewanie oraz ciepła woda z MPEC Lokalizacja osiedla zapewnia w pełni rozbudowaną infrastrukturę, w tym sklepy spożywcze, supermarkety, restauracje, kawiarnie, apteki, banki, poczta, siłownie placówki medyczne, szkoły, przedszkola oraz liczne tereny rekreacyjne. 2,5 km od Kampusu Uniwersytetu Jagiellońskiego Komunikacja: Pętla tramwajowa i autobusowa (5 minut spacerem) 3 km od autostrady 13km od lotniska Zapraszam do kontaktu po więcej szczegółów, Marek Popiela tel; +4 518 967 677 mail; marek@sadurscy.pl ::DODATKOWE INFORMACJE | Rodzaj budynku: blok | Dozór budynku: brak | Głośność: średnio głośne | Widok: na inne budynki | Gaz: brak | Woda: jest | Dojazd: ASFALTOWA | Otoczenie: działki zabudowane | Ogrzewanie: C.O. miejskie | Linie telefoniczne: TAK | Internet: TAK | Komunikacja publ.: tramwaj, tak, autobus | Winda: TAK | Liczba wind: 1 | Rozkład: rozkładowe | Usytuowanie: jednostronne | Drzwi antywłamaniowe: TAK | Opłaty w czynszu: - | Rodzaj mieszkania: jednopoziomowe | Garaż: Tak | Stan lokalu: deweloperski | Okna: PCV | Instalacje: nowe | Balkon: jest | Liczba balkonów: 1 | Rok budowy: 2024 | Liczba pokoi: 2 | Liczba sypialni: 1 | Podłogi pokoi: wylewka betonowa | Ściany pokoi: zwykłe | Typ kuchni: aneks kuchenny - połączony z salonem | Rodzaj kuchni: otwarta na salon | Podłoga kuchni: wylewka betonowa | Typ łazienki: razem z wc | Liczba łazienek: 1 | Glazura łazienki: bez glazury | Podłoga łazienki: wylewka betonowa | Ściany łazienki: zwykłe | Liczba przedpokoi: 1 | Podłoga przedpokoi: wylewka betonowa | Ściany przedpokoi: zwykłe | ::LINK DO STRONY | sadurscy.pl/offer/BS2-MS-305007 ::KONTAKT DO AGENTA | Marek Popiela | +48 518-967-677 | marek@sadurscy.pl ::DANE BIURA | Oddział BS2, Rynek Pierwotny | Przewóz 47 | 30-081 Kraków | 12 630-90-45 -------------------------- ::GRATIS | Nasza prowizja zawiera: koszt przedwstępnej notarialnej umowy sprzedaży nieruchomości z rynku wtórnego. ::GWARANCJA | Gwarancja zwrotu zadatku. Więcej informacji na sadurscy.pl/zwrot-zadatku/ | Oferta wysłana z systemu Galactica Virgo
Media
Telefon
Internet
Ogrzewanie
Miejskie
Informacje dodatkowe
Winda
Łazienka z WC
Lokalizacja
BS2-MS-305007-16








