14 621 PLN/m2
Rynek pierwotny
2022 r.
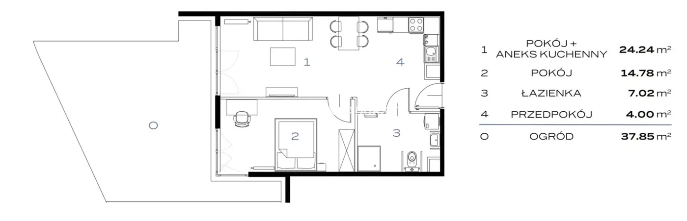
50,15 m2
Parter z 5
2 pokoje
1 łazienka
Szczegóły
- Typ kuchniAneks
- OknaPlastikowe
- Forma własnościPełna własność
Opis nieruchomości
| GÓRKA NARODOWA - NOWOCZESNE OSIEDLE MIESZKANIOWE, SPOKOJNA OKOLICA - V ETAP. Prezentowana oferta zlokalizowana jest w północnym rejonie Krakowa, w zielonej i przestrzennej dzielnicy Prądnik Biały. Inwestycja składa się z trzech nowoczesnych pięciopiętrowych budynków. W ofercie 183 starannie zaprojektowane mieszkania o powierzchni od 31 do 86 m2. Do wyboru 1,-2-,3,-4,-pokojowe. Mieszkania parterowe będą posiadały ogrody oraz zostaną wyposażone w elektryczne rolety. Na ostatnich piętrach mieszkania z tarasami. W podziemnej części budynków znajdować się będzie hala garażowa z miejscami postojowymi, komórkami lokatorskimi oraz miejscami z dedykacją do ładowania samochodów. Budynki wykonywane z wysokiej jakości materiałów budowlanych z dbałością o każdy szczegół. Inwestycja zostanie ogrodzona w częściach wspólnych oraz monitorowana. Dodatkowo na wspólnym terenie zaprojektowano duży plac zabaw z boiskiem do koszykówki oraz ścianką wspinaczkową. Idealne miejsce dla aktywnych - z dala od miejskiego zgiełku, a jednocześnie bliskość Parku Leśnego Witkowice ze szlakami rowerowymi, pieszymi i turystycznymi. Wokół pełna infrastruktura handlowo - usługowa (żłobki, przedszkola, sklepy, firmy usługowe). Odległość 4 km od centrum miasta. Idealna oferta dla rodzin z dziećmi. Mieszkania gotowe do odbioru ::DODATKOWE INFORMACJE | Kategoria oferty: Pewny Partner, Mieszkania dla rodzin z dziećmi | Rodzaj budynku: nowe budownictwo | Dozór budynku: monitoring | Głośność: ciche | Plac zabaw: TAK | Widok: na inne budynki | Gaz: brak | Woda: jest | Dojazd: asfalt | Otoczenie: działki zabudowane | Ogrzewanie: miejskie | Linie telefoniczne: TAK | Telewizja kablowa: TAK | Komunikacja publ.: bus, autobus podmiejski, autobus miejski, autobus | Winda: TAK | Liczba wind: 1 | Rozkład: rozkładowe | Usytuowanie: jednostronne | Rolety antywłamaniowe: TAK | Teren ogrodzony: TAK | Opłaty w czynszu: - | Rodzaj mieszkania: jednopoziomowe | Garaż: możliwość kupna | Stan lokalu: deweloperski | Okna: PCV | Instalacje: nowe | Balkon: brak | Rok budowy: 2022 | Liczba pokoi: 2 | Liczba sypialni: 1 | Podłogi pokoi: wylewka | Ściany pokoi: zwykłe | Typ kuchni: aneks kuchenny - połączony z salonem | Rodzaj kuchni: otwarta na salon | Podłoga kuchni: wylewka | Typ łazienki: razem z wc | Liczba łazienek: 1 | Glazura łazienki: bez glazury | Podłoga łazienki: wylewka | Ściany łazienki: zwykłe | Liczba przedpokoi: 1 | Podłoga przedpokoi: wylewka | Ściany przedpokoi: zwykłe | ::LINK DO STRONY | sadurscy.pl/offer/BS2-MS-296167 ::KONTAKT DO AGENTA | Arkadiusz Zemła | +48 518-706-552 | arek@sadurscy.pl ::DANE BIURA | Oddział BS2, Rynek Pierwotny | Przewóz 47 | 30-081 Kraków | 12 630-90-45 -------------------------- ::GRATIS | Nasza prowizja zawiera: koszt przedwstępnej notarialnej umowy sprzedaży nieruchomości z rynku wtórnego. ::GWARANCJA | Gwarancja zwrotu zadatku. Więcej informacji na sadurscy.pl/zwrot-zadatku/ | Oferta wysłana z systemu Galactica Virgo
Media
Telefon
Ogrzewanie
Miejskie
Informacje dodatkowe
Winda
Łazienka z WC
Lokalizacja
BS2-MS-296167-80










