14 501 PLN/m2
Rynek pierwotny
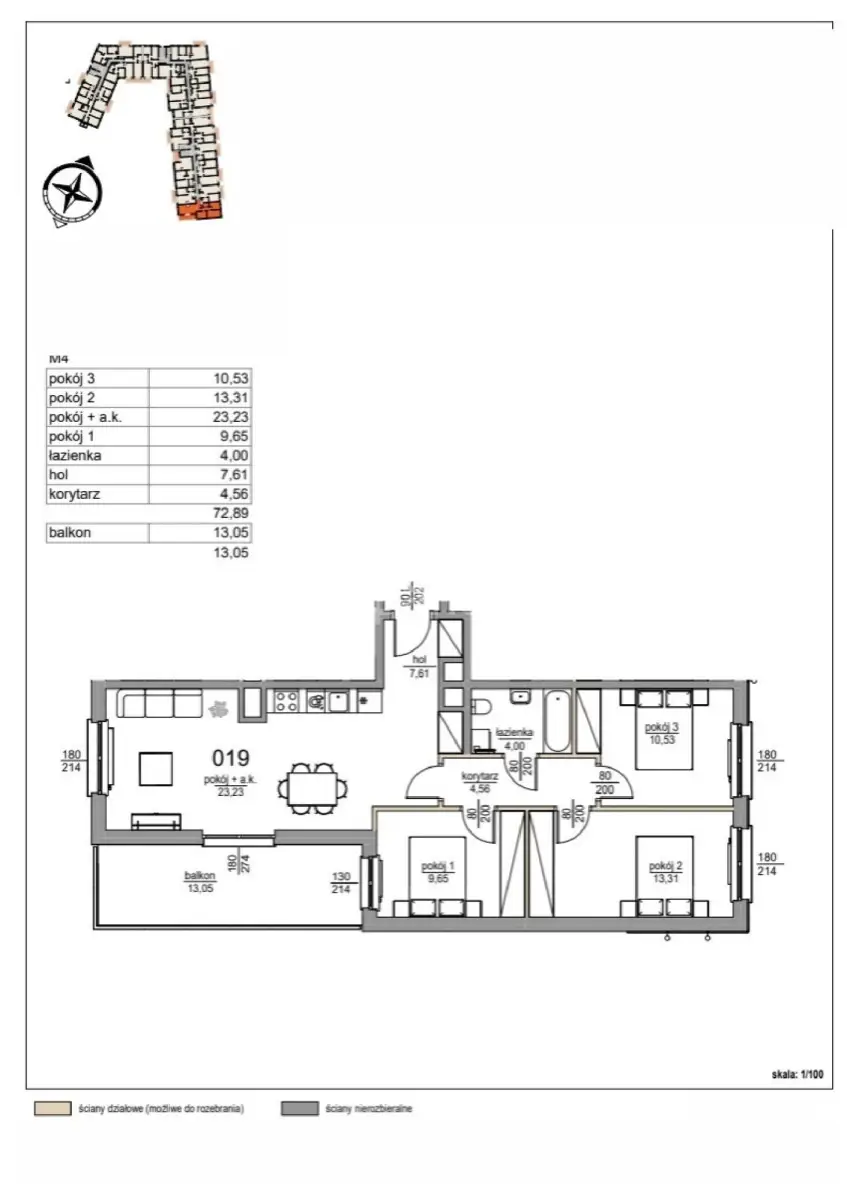
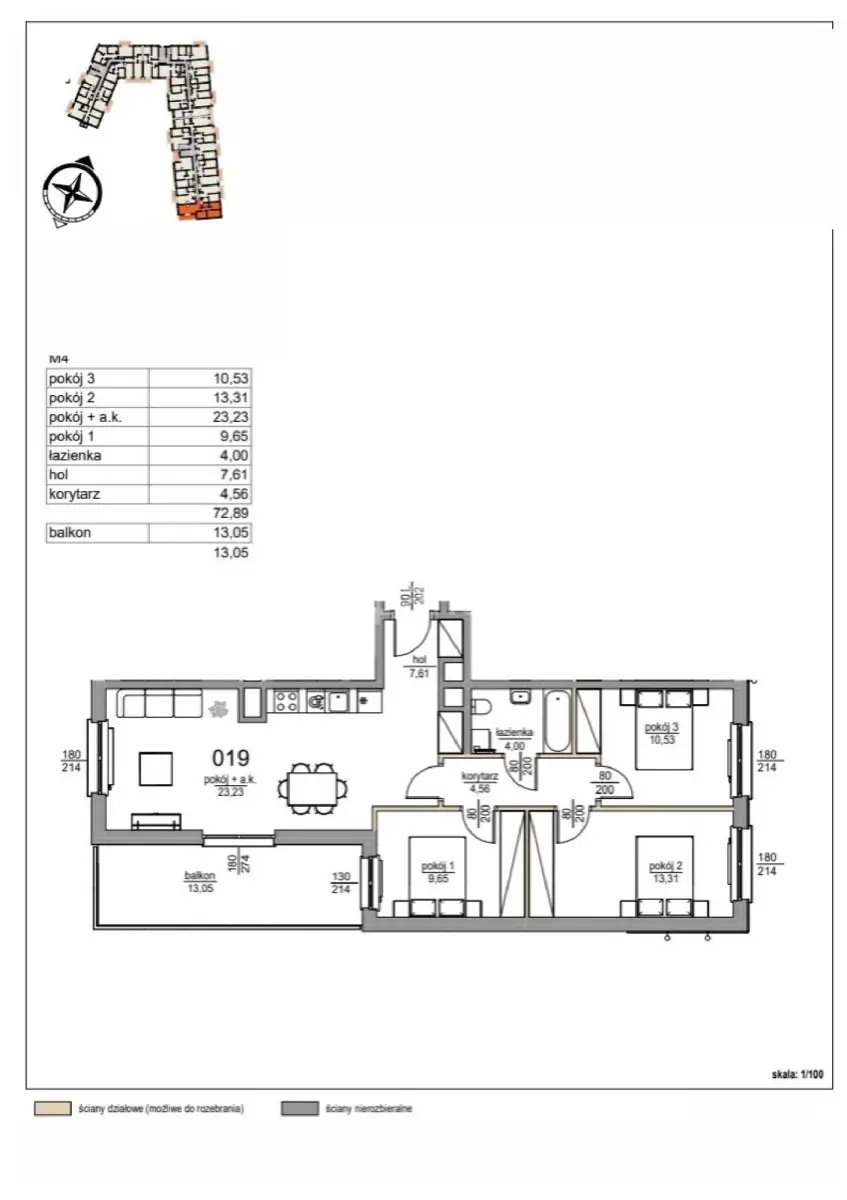
72,89 m2
Piętro 2 z 6
4 pokoje
Szczegóły
Opis nieruchomości
ZAKUP OD DEWELOPERA
0% PROWIZJI DLA KUPUJĄCEGO
BRAK PODATKU PCC
Na sprzedaż apartament o powierzchni 72,89 m2 wraz z dużym balkonem.Zlokalizowany na drugim piętrze w budynku sześciopiętrowym.
Składa się z 3 oddzielnych pokoi, salonu z aneksem kuchennym, łazienki, holu i korytarza.Wymiary poszczególnych pomieszczeń są następujące:
- salon+aneks kuchenny - 23,23 m2
- pokój 1 - 9,65 m2
- pokój 2 - 13,31 m2
- pokój 3 - 10,53 m2
- łazienka - 4 m2
- hol - 7,61 m2
- korytarz 4,56 m2.
Okna z pokoju 2 i 3 wychodzą na stronę wschodnią.Salon wraz z aneksem kuchennym i pokój numer 1 na stronę zachodnią.Z salonu i pokoju nr 1 jest wyjście na piękny, duży balkon o powierzchni 13,05 m2.
Duże okna doskonale doświetlają mieszkanie.
Nowoczesna architektura o podwyższonym standardzie wykończenia.
Dostępne dla wszystkich mieszkańców są ogrody na dachu,na których będą znajdować się place zabaw dla dzieci, dużo zieleni i miejsce do odpoczynku.Miejsca parkingowe zlokalizowane w garażu podziemnym.
Inwestycja zlokalizowana dobrze pod względem komunikacyjnym, 50 m2 do przystanku autobusowego i 850 m2 do stacji metra Bródno.
W pobliżu szkoły, przedszkola, sklepy i centra handlowe.
Nr lokalu -19
Zainteresowany? Zadzwoń teraz i umów się na spotkanie online
Ogrzewanie
Jest
Lokalizacja
EX184542




