11 506 PLN/m2
Rynek pierwotny
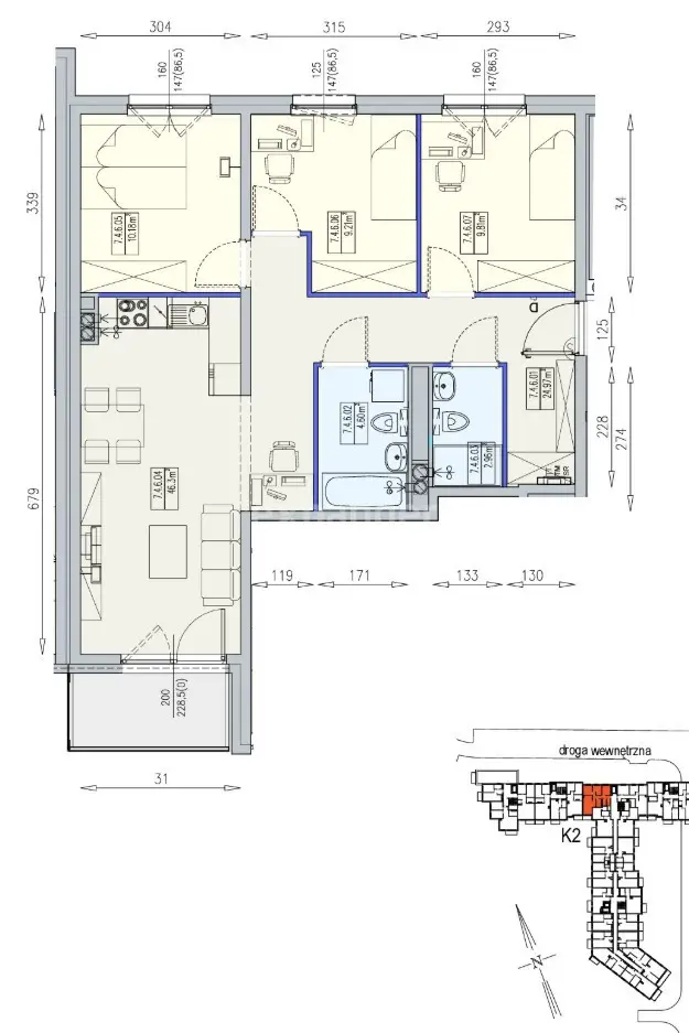
72,4 m2
Piętro 4 z 4
4 pokoje
Szczegóły
Opis nieruchomości
Rozkładowe 4-pokojowe mieszkanie z widokiem na dziedziniec z zielenią
---Cechy nieruchomości---
Powierzchnia: 72,40 m²
Sypialni: 3
Balkon: 3,9 m²
Aneks kuchenny: 46,3 m²
-------------------------------------------------------------------------------------------------------------------------------
W okolicy pełna infrastruktura - sklepy spożywcze, apteki, stacje paliw, restauracje, kawiarnie oraz punkty usługowe
Przewidywany termin ukończenia realizacji II kwartał 2026r.
Na ostatnim zdjęciu zaprezentowane jest przykładowe wykończenie mieszkania.
Jeśli mają Państwo jakiekolwiek pytania, serdecznie zapraszam do kontaktu.
Zadzwoń lub napisz wiadomość!
Anastasiia Budash
+48 660 468 486
K2 7/4/1/4a
Zainteresowany? Zadzwoń teraz i umów się na spotkanie online
Ogrzewanie
Jest
Lokalizacja
EX112609








