13 115 PLN/m2
Rynek pierwotny
52 m2
Piętro 8 z 8
3 pokoje
Szczegóły
Opis nieruchomości
2-pokojowe mieszkanie z możliwością zamknięcia kuchni.
---Cechy nieruchomości---
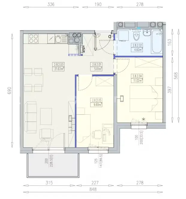
Powierzchnia: 52 m²
Pokoje: 2 sypialnie oraz salon z aneksem kuchennym
Balkon: 4.26 m²
-------------------------------------------------------------------------------------------------------------------------------
W okolicy pełna infrastruktura - sklepy spożywcze, apteki, stacje paliw, restauracje, kawiarnie oraz punkty usługowe
Przewidywany termin ukończenia realizacji II kwartał 2026r.
Na ostatnim zdjęciu zaprezentowane jest przykładowe wykończenie mieszkania.
Jeśli mają Państwo jakiekolwiek pytania, serdecznie zapraszam do kontaktu.
Zadzwoń lub napisz wiadomość!
Anastasiia Budash
+48 660 468 486
anastasiia.budash@expander.pl
K2 2/8/2/3a
Zainteresowany? Zadzwoń teraz i umów się na spotkanie online
Ogrzewanie
Jest
Lokalizacja
EX676251







