63 PLN/m2
Rynek wtórny
1990 r.
127,45 m2
Piętro 1 z 1
5 pokoi
Szczegóły
- OknaAluminiowe
- Stan wykończeniaBardzo dobry
Opis nieruchomości
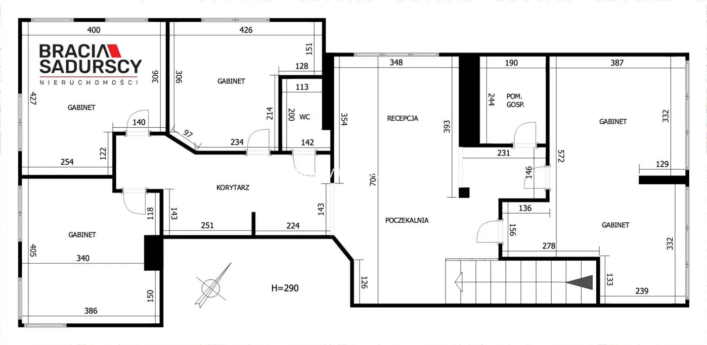
| Oferujemy do wynajmu lokal usługowy na 1 piętrze budynku usługowego ul. Konfederacka - dzielnica Dębniki. Powierzchnia 127,45m2 na które składa się hall, 7 pomieszczeń, aneks kuchenny, łazienka. Ogrzewanie w budynku MPEC miejskie. Dodatkowo bardzo dobra stolarka aluminiowa oraz światłowód. Wejście do lokalu wprost z chodnika przez drzwi witrynowe - dodatkowe możliwości reklamy. Obecnie w lokalu działalność medyczna lecz można dostosować pod inny rodzaj działalności usługowo-biurowy. Blisko komunikacja miejska - tramwaj, autobus. Miejsca do parkowania na ulicy płatne - strefa płatnego parkowania - nie ma problemu z dostępnością. Czynsz najmu 8000 zł + media Kontakt: Dariusz Zieliński 503-112-787 ::DODATKOWE INFORMACJE | Rodzaj budynku: biurowiec | Dozór budynku: możliwy | Gaz: brak | Woda: ciepła - miejska | Dojazd: asfalt | Otoczenie: centrum miasta | Ogrzewanie: C.O. miejskie | Alarm: TAK | Internet: TAK | Komunikacja publ.: autobus miejski, tramwaj, autobus | Winda: NIE | Usytuowanie: dwustronne | Możliwość parkowania: płatne | Witryna wystawowa: od ulicy | Wejście: od ulicy | Liczba wejść: 1 | Min. okres naj. (mies.): 12 | Opłaty w czynszu: fundusz remontowy, Części wspólne, administracja | Opłaty wg liczników: woda, prąd, CO | Stan lokalu: bardzo dobry | Okna: aluminiowe | Instalacje: dobre | Powierzchnia użytkowa [m2]: 127,4500 | Rok budowy: 1990 | Rodzaj lokalu: jednopoziomowy | Przeznaczenie lokalu: usługowy, handlowy, handlowo-usługowy, biurowy | Liczba pokoi: 5 | Wysokość pomieszczeń [m]: 3 | Liczba kondyg. biurowych: 1 | Typ kaucji: dwumiesięczna | ::LINK DO STRONY | sadurscy.pl/offer/BS2-LW-305703 ::KONTAKT DO AGENTA | Dariusz Zieliński | +48 503-112-787 | darek.zielinski@sadurscy.pl ::DANE BIURA | Oddział BS2, Rynek Pierwotny | Przewóz 47 | 30-081 Kraków | 12 630-90-45 Pośrednik odpowiedzialny zawodowo za wykonanie umowy pośrednictwa: Dariusz Sadurski (licencja nr: 803) -------------------------- ::GRATIS | Nasza prowizja zawiera: koszt przedwstępnej notarialnej umowy sprzedaży nieruchomości z rynku wtórnego. ::GWARANCJA | Gwarancja zwrotu zadatku. Więcej informacji na sadurscy.pl/zwrot-zadatku/ | Oferta wysłana z systemu Galactica Virgo
Ogrzewanie
Miejskie
Droga dojazdowa
Droga asfaltowa
Lokalizacja
BS2-LW-305703














