40 PLN/m2
Rynek wtórny
Biurowiec 2008 r.
136,4 m2
Szczegóły
- Forma własnościPełna własność
- Czynsz5 456 PLN
Opis nieruchomości
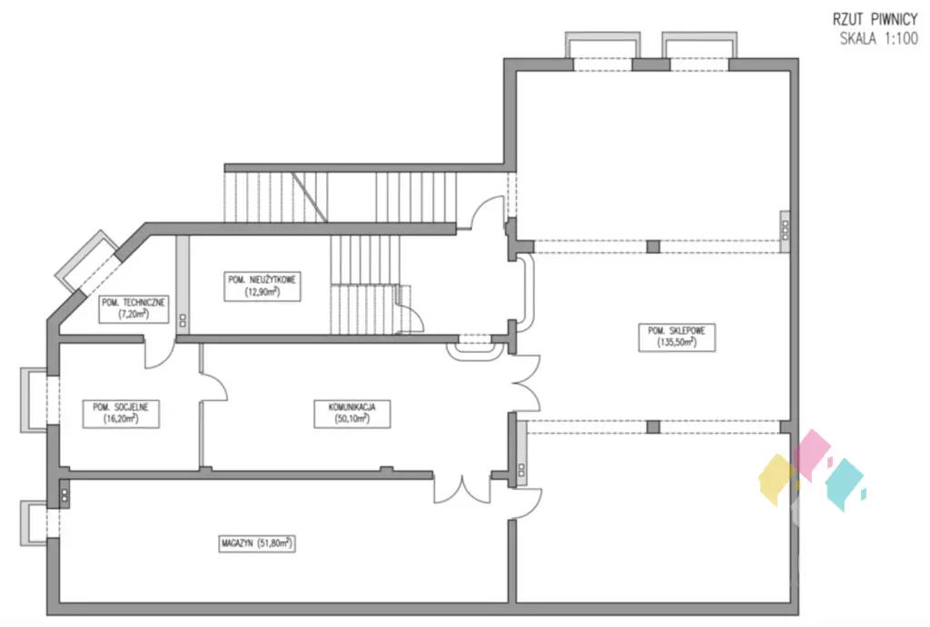
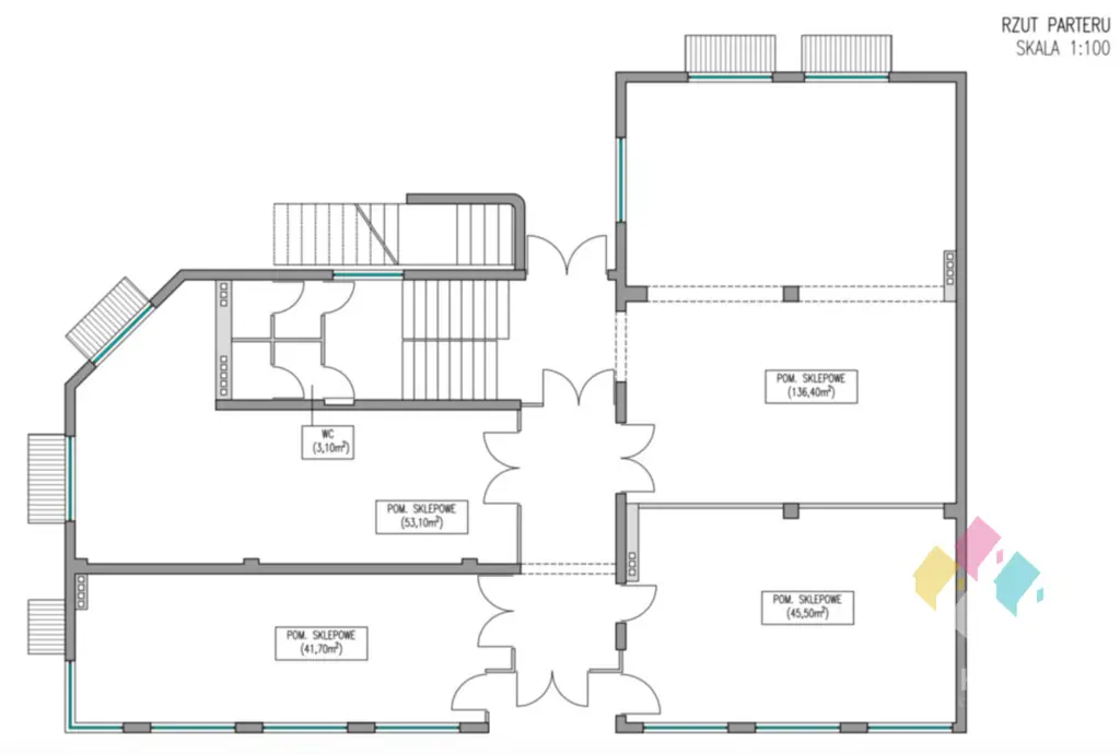
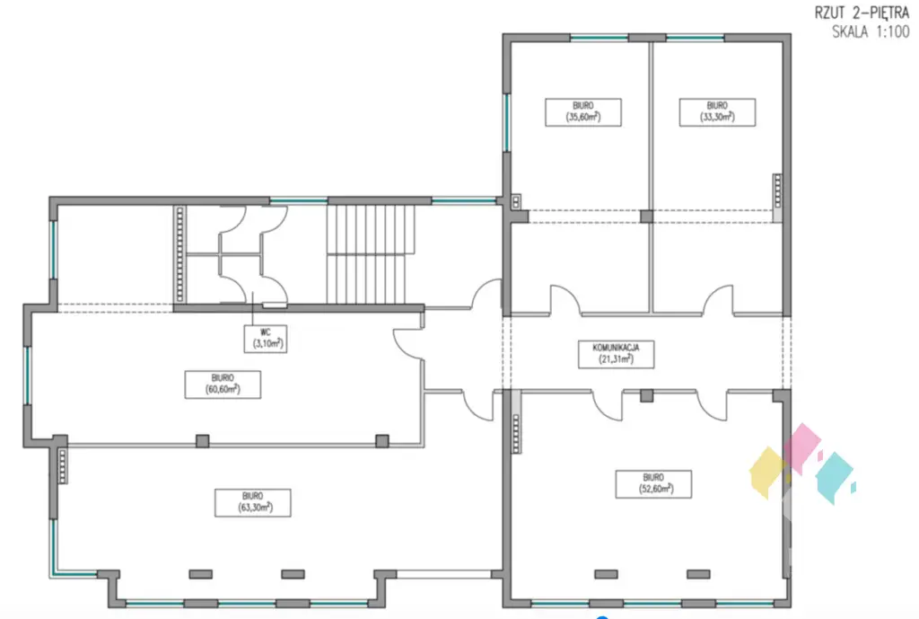
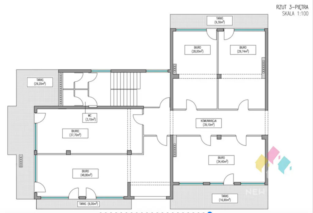
Do wynajęcia lokal handlowo-usługowy o powierzchni 136,4 m2 na parterze budynku handlowo-usługowego, położonego w doskonałej lokalizacji - centrum Szczytna przy ul. Polskiej 47. Do wynajęcia także inne lokale handlowo-usługowe oraz biurowe w tym budynku o powierzchniach od 28 do 200 m2. Możliwość dowolnej adaptacji. LOKALIZACJA: Nieruchomość położona w centrum Szczytna przy głównej ulicy - Polskiej 47. W pobliskim otoczeniu przeważa zabudowa handlowo-usługowa oraz mieszkaniowa a także znajduje się Biedronka, Lidl, Wyższa Szkoła Policji oraz inne punkty handlowo-usługowe. BUDYNEK: Budynek czterokondygnacyjny, podpiwniczony, wybudowany w technologii tradycyjnej, murowanej, z wewnętrznymi ramami żelbetowymi, ocieplony styropianem 10 cm, stropy żelbetowe gr. 18 cm. Stolarka okienna PCV, dach dwuspadowy. Budynek o powierzchni 1300 m2 składa się z V kondygnacji. W części piwnicznej, parterowej i na I piętrze są lokale o funkcji handlowo-usługowej a na piętrze II i III funkcja usługowo-biurowa. Powierzchnie kondygnacji: Piwnica: 260 m2, Parter: 272 m2, I piętro: 272 m2, II piętro 272 m2, III piętro 223 m2. LOKAL: Lokal o powierzchni 136,4 m2 znajduje się na parterze, z dużą witryną. Stan lokali bardzo dobry. Pomieszczenia ustawne i przestronne, idealne zarówno pod działalność usługową (np. gabinet kosmetyczny, poradnia, przedszkole), jak i handlową lub biurową. Dobre oświetlenie oraz okna we wszystkich pomieszczeniach sprawiają, że pomieszczenia są dobrze doświetlone. Wykończenie estetyczne i jasne - na podłogach płytki, ściany pomalowane na jasne barwy. Dzięki temu bardzo łatwo będzie można zaaranżować powierzchnie w zależności od własnych potrzeb. DZIAŁKA: Działka o powierzchni 0,0379 ha. Dojazd do nieruchomości drogą asfaltową. Teren w całości zagospodarowany, płaski, utwardzony kostką brukową. Za budynkiem sporo miejsc parkingowych. Pełne media: sieć elektryczna, wodociągowa miejska, kanalizacyjna miejską, gazowa i telefoniczna. DOSTĘPNOŚĆ/OPŁATY: Dostępne od zaraz. Cena najmu 60 zł /m2 + VAT + media. POŚREDNIK: Aleksandra Kicka Tel. 512 337 881 ola@newhouse.co Przedstawiona oferta cenowa ma charakter informacyjny, nie stanowi oferty handlowej w rozumieniu art.66 § 1 Kodeksu Cywilnego. Właścicielem ogłoszenia wraz z jej elementami jest NewHouse Łukasz Wróbel oraz podmioty współpracujące. Wszelkie prawa są zastrzeżone, kopiowanie, rozpowszechnianie oraz korzystanie z niniejszych składowych materiałów ogłoszenia w jakikolwiek inny sposób wykraczający poza dozwolony użytek określony przepisami ustawy z 4 lutego 1994 r. o prawie autorskim i prawach pokrewnych (Dz. U. 1994, nr 24 poz. 83 z późn. zm.) bez zgody NewHouse Łukasz Wróbel lub podmiotów współpracujących jest zabronione i może stanowić podstawę odpowiedzialności cywilnej oraz karnej. Niniejsze materiały stanowią tajemnicę firmy NewHouse Łukasz Wróbel lub podmiotów współpracujących w rozumieniu ustawy z dnia 16 kwietnia 1993 r. o zwalczaniu nieuczciwej konkurencji (Dz. U. z 2003 r., Nr 153, poz. 1503 z późn. zm.). Niniejsze ogłoszenie nie stanowi oferty w rozumieniu Kodeksu Cywilnego, lecz ma charakter informacyjny.
Przeznaczenie
Handel / Usługi
Funkcja biurowa
Media
Prąd
Gaz
Droga dojazdowa
Droga asfaltowa
Lokalizacja
1263/6682/OOW










