13 600 PLN/m2
Rynek pierwotny
Dom wielorodzinny 2022 r.
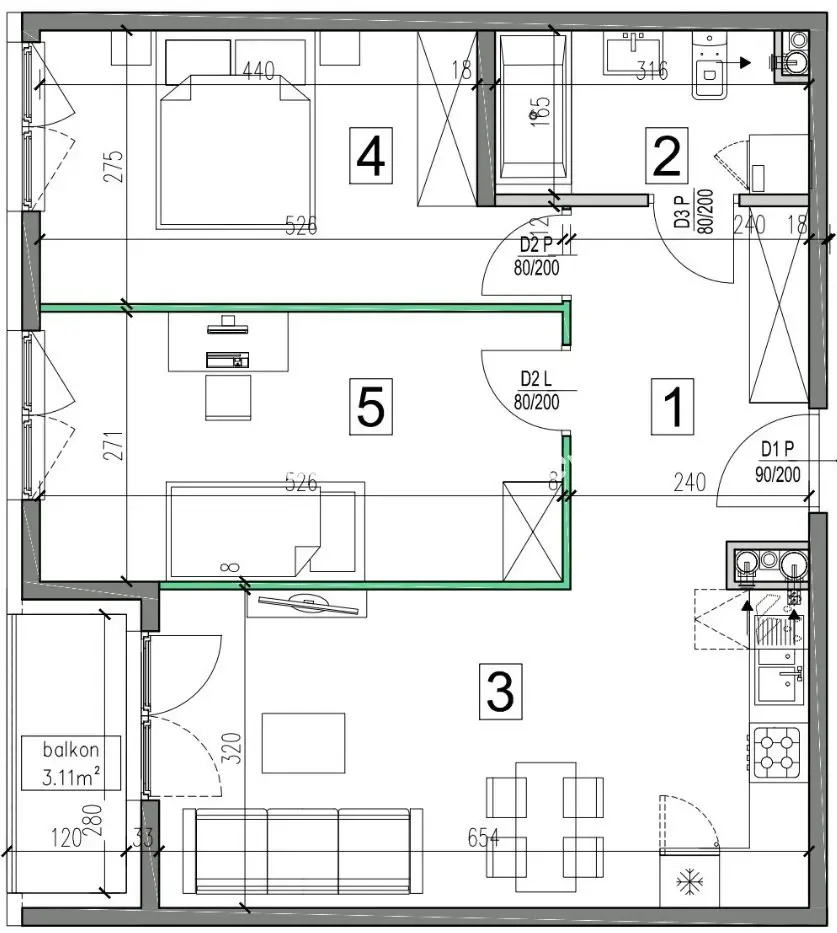
69,87 m2
Piętro 5 z 5
3 pokoje
1 łazienka
Szczegóły
- Typ kuchniAneks
- OknaPlastikowe
- Forma własnościPełna własność
Opis
| PODÓRZE REJON PŁASZOWA - NOWA INWESTYCJA MIESZKANIOWA. Prezentowana inwestycja składa się z dwóch pięciopiętrowych budynków mieszkalnych. Budynki w kształcie litery "L" o eleganckiej i nowoczesnej architekturze. W ofercie posiadamy mieszkania 2,-3,-4-pokojowe w metrażach od 39 do 86 m2. Mieszkania posiadają balkon, loggie lub taras. Mieszkania wyposażone w inteligentny system smart home. Budynki wyposażone w windy, monitoring, wielostanowiskowy garaż podziemny, komórki lokatorskie, rowerowanie, stojaki na rowery i stację naprawy rowerów. W częściach wspólnych zaprojektowano patio, plac zabaw i strefę wypoczynkową z leżakami. Mieszkania oddawane w stanie deweloperskim do własnej aranżacji, większość posiada dozwolone do zmian ściany wewnętrze. Istnieje również możliwość łącznia mieszkań. Inwestycja zlokalizowana na Podgórzu w rejonie Płaszowa. W łatwy sposób można się dostać do centrum miasta, Rynku Głównego, Dworca Głównego, Kazimierza czy Zabłocia. W okolicy pętla tramwajowa, w odległości 740 m Zalew Bagry, wokół rozwinięta infrastruktura handlowo-usługowa. Termin zakończenia inwestycji: III kwartał 2022 r. Kontakt: Marek Popiela +48 518 967 677 marek@sadurscy.pl ::DODATKOWE INFORMACJE | Rodzaj budynku: budynek wielorodzinny | Dozór budynku: monitoring | Głośność: średnio głośne | Widok: na osiedle | Gaz: brak | Woda: tak - miejska | Dojazd: asfalt | Otoczenie: działki zabudowane | Ogrzewanie: miejskie | Linie telefoniczne: TAK | Komunikacja publ.: tramwaj, autobus | Winda: TAK | Liczba wind: 1 | Rozkład: rozkładowe | Usytuowanie: jednostronne | Drzwi antywłamaniowe: TAK | Naziemn. miejsc parking.: 25 | Opłaty w czynszu: - | Rodzaj mieszkania: jednopoziomowe | Garaż: możliwość kupna | Stan lokalu: deweloperski | Okna: PCV | Instalacje: nowe | Balkon: jest | Liczba balkonów: 1 | Rok budowy: 2022 | Liczba pokoi: 3 | Liczba sypialni: 2 | Podłogi pokoi: wylewka | Ściany pokoi: zwykłe | Typ kuchni: aneks kuchenny - połączony z salonem | Rodzaj kuchni: otwarta na salon | Podłoga kuchni: wylewka | Typ łazienki: razem z wc | Liczba łazienek: 1 | Glazura łazienki: bez glazury | Podłoga łazienki: wylewka | Ściany łazienki: zwykłe | Liczba przedpokoi: 1 | Podłoga przedpokoi: wylewka | Ściany przedpokoi: zwykłe | ::LINK DO STRONY | sadurscy.pl/offer/BS2-MS-298270 ::KONTAKT DO AGENTA | Dariusz Zieliński | +48 503-112-787 | darek.zielinski@sadurscy.pl ::DANE BIURA | Oddział BS2, Rynek Pierwotny | Przewóz 47 | 30-081 Kraków | 12 630-90-45 Pośrednik odpowiedzialny zawodowo za wykonanie umowy pośrednictwa: Dariusz Sadurski (licencja nr: 803) -------------------------- ::GRATIS | Nasza prowizja zawiera: koszt przedwstępnej notarialnej umowy sprzedaży nieruchomości z rynku wtórnego. ::GWARANCJA | Gwarancja zwrotu zadatku. Więcej informacji na sadurscy.pl/zwrot-zadatku/ | Oferta wysłana z systemu Galactica Virgo
Media
Telefon
Ogrzewanie
Miejskie
Informacje dodatkowe
Parking
Winda
Łazienka z WC
Lokalizacja
BS2-MS-298270-41










