15 318 PLN/m2
Rynek pierwotny
2023 r.
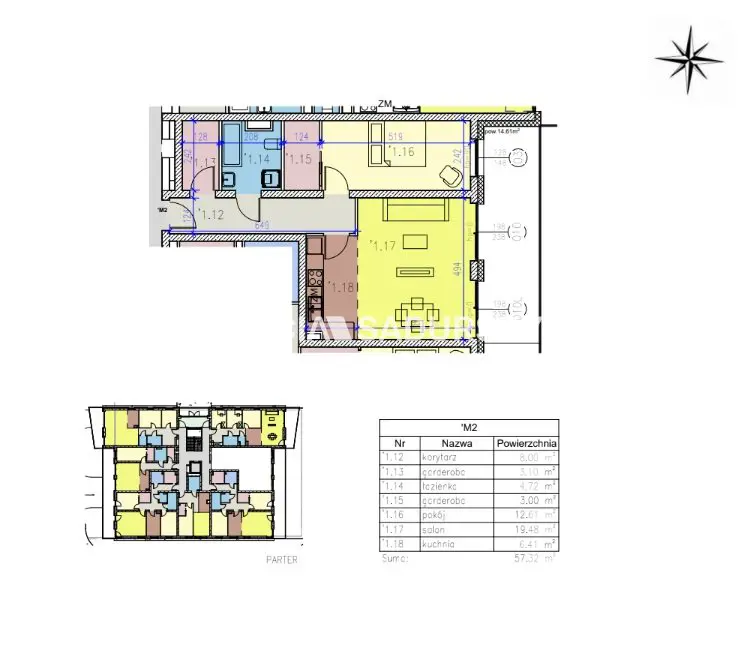
57,32 m2
Parter z 5
2 pokoje
1 łazienka
Szczegóły
- Typ kuchniAneks
- OknaPlastikowe
- Forma własnościPełna własność
Opis
| Marzysz, aby mieszkać w cichej i spokojnej okolicy nie rezygnując jednocześnie z uroków miasta? Jesteś w dobrym miejscu! Przedstawiamy inwestycję w krakowskiej dzielnicy Prądnik Czerwony, która znajduje się tuż przy 8 hektarowym parku rekreacyjno-spacerowym. W skład wchodzą 2 budynki 6- kondygnacyjne , kolejno po 22 i 37 mieszkań. Funkcjonalne układy mieszkań mieszczące się w przedziałach od 40/41 m2- 137 m2 przypadną do gustu nawet tym najbardziej wymagającym.Inwestycja wykonana z najwyższej jakości materiałów budowlanych z dbałością o każdy szczegół. Większość mieszkań na parterach będą mieć ogródki , na wyższych piętrach balkony . Podziemna część budynku przeznaczona jest na garaż z miejscami parkingowymi. Wysokość pomieszczeń na poziomie 3,13 metr a w mieszkaniach zlokalizowanych na parterze dodaje wyjątkowego charakteru, umożliwiając kreatywne aranżacje z nietypowym wyposażeniem. Dzięki temu można łatwo wydzielić różne strefy funkcjonalne, używając antresoli lub podwieszanych przegród. Niebywałym atutem jest lokalizacja, która sprzyja osobom zarówno przemieszczającym się samochodem jak i komunikacją miejską. Pobliskie tereny bogate są w punkty usługowo-handlowe oraz rozrywkowe np. Serenada, Park Wodny, Multikino , co z pewnością odpowie potrzebom zarówno młodszych jak i starszych osób. Obecność Parku tuż obok inwestycji daje możliwość obcowania z naturą oraz spędzenia wolnego czasu na świeżym powietrzu. W bliskim sąsiedztwie zabudowy wielorodzinnej znajdują się żłobki, przedszkola oraz szkoła. Termin zakończenia budowy zaplanowano na II kwartał 2023 r. Zapraszam do kontaktu: Malwina Filas malwina@sadurscy.pl 518-706-518 ::DODATKOWE INFORMACJE | Kategoria oferty: Pewny Partner, Mieszkania dla rodzin z dziećmi | Rodzaj budynku: nowe budownictwo | Dozór budynku: brak | Głośność: ciche | Widok: na osiedle | Gaz: brak | Woda: jest | Dojazd: asfalt | Otoczenie: osiedle | Ogrzewanie: C.O. miejskie | Komunikacja publ.: MPK, miejska, tramwaj, autobus | Odległość do komunikacji publicznej [m]: 200 | Odl. do sklepu [m]: 150 | Odl. do szkoły [m]: 800 | Odl. do przedszkola [m]: 350 | Winda: TAK | Rozkład: jednostronne | Usytuowanie: jednostronne | Opłaty w czynszu: - | Rodzaj mieszkania: jednopoziomowe | Garaż: możliwość kupna | Stan lokalu: deweloperski | Okna: PCV | Instalacje: nowe | Balkon: jest | Liczba balkonów: 1 | Rok budowy: 2023 | Liczba pokoi: 2 | Liczba sypialni: 1 | Podłogi pokoi: wylewka | Ściany pokoi: zwykłe | Typ kuchni: aneks kuchenny - połączony z salonem | Rodzaj kuchni: aneks kuchenny | Podłoga kuchni: wylewka | Typ łazienki: razem z wc | Liczba łazienek: 1 | Glazura łazienki: bez glazury | Podłoga łazienki: wylewka | Ściany łazienki: zwykłe | Liczba WC: 1 | Glazura WC: bez glazury | Podłoga WC: wylewka | Liczba przedpokoi: 1 | Podłoga przedpokoi: wylewka | Ściany przedpokoi: zwykłe | ::LINK DO STRONY | sadurscy.pl/offer/BS2-MS-305254 Zobacz Wirtualny Spacer: https://my.matterport.com/show/?m=C1ZFf2ayZZ4 ::KONTAKT DO AGENTA | Malwina Filas | +48 518-706-518 | malwina@sadurscy.pl ::DANE BIURA | Oddział BS2, Rynek Pierwotny | Przewóz 47 | 30-081 Kraków | 12 630-90-45 -------------------------- ::GRATIS | Nasza prowizja zawiera: koszt przedwstępnej notarialnej umowy sprzedaży nieruchomości z rynku wtórnego. ::GWARANCJA | Gwarancja zwrotu zadatku. Więcej informacji na sadurscy.pl/zwrot-zadatku/ | Oferta wysłana z systemu Galactica Virgo
Ogrzewanie
Miejskie
Informacje dodatkowe
Winda
Łazienka z WC
Wirtualny spacer
https://my.matterport.com/show/?m=C1ZFf2ayZZ4Lokalizacja
BS2-MS-305254-72






