13 800 PLN/m2
Rynek pierwotny
Szeregowiec 2024 r.
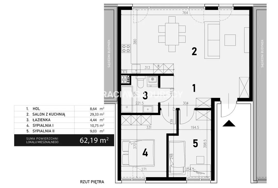
62,19 m2
Piętro 1 z 2
3 pokoje
1 łazienka
Szczegóły
- Typ kuchniAneks
- Forma własnościPełna własność
Opis
| Bracia Sadurscy to oficjalny przedstawiciel handlowy dewelopera - kupując z nami nie płacisz prowizji i ukrytych kosztów. Mam przyjemność zaprezentować Państwu inwestycje mieszkaniową. Przestronna strefa dzienna z dużymi przeszkleniami. W standardzie ogrzewanie podłogowe oraz klimatyzacja! Kameralne osiedle zlokalizowane w sercu Krakowskich Bronowic, łączące wygodę życia w pobliżu rozwiniętej infrastruktury z zaciszną atmosferą okolicy. W sąsiedztwie znajdują się liczne punkty handlowo-usługowe, takie jak Galeria Bronowicka, Ikea, Castorama i Obi, zapewniając wygodny dostęp do codziennych potrzeb. Osiedle składa się z 8 dwulokalowych, jednorodzinnych budynków w zabudowie szeregowej, oferujących 16 przestronnych mieszkań o powierzchni około 62 m². Dodatkowym atutem są przestronne strefy dzienne, duże, nowoczesne okna oraz wysoki standard wykończenia , obejmujący m.in. ogrzewanie podłogowe i instalację klimatyzacyjną . To idealne miejsce, które łączy komfort z wygodą miejskiego życia. Termin realizacji inwestycji: czerwiec 2025 rok, Rozkład mieszkań: parter/1 piętro, Budynek: dom wielorodzinny, Miejsce/a postojowe naziemne (dodatkowo płatne) Miejsca postojowe pod wiatą (dodatkowo płatne) teren ogrodzony. Standard wykończenia lokalu mieszkalnego ŚCIANY: - ściany między lokalowe oraz ścianki działowe murowane z pustaka ceramicznego, niemalowane - ściany oraz sufity pokryte tynkiem gipsowym (w łazienkach zatarte na ostro) POSADZKI: - wylewka betonowa cementowa, do indywidualnego wykończenia STOLARKA OKIENNA: - okna i drzwi balkonowe z PCV, pakiet trzyszybowy - na zewnątrz okleina kolor zbliżony do wizualizacji, wewnątrz białe DRZWI: - drzwi wejściowe do lokali antywłamaniowe - otwory drzwiowe wewnętrzne lokalowe nietynkowane, bez ościeżnic i skrzydeł drzwiowych INSTALACJE: - instalacja elektryczna 230V bez osprzętu elektrycznego oraz punktami świetlnymi bez opraw (gniazdka, włączniki i lampy do indywidualnego montażu przez Klienta), Instalacja elektryczna 400v (3 faza) doprowadzona do pomieszczenia kuchni dla zasilania kuchenki elektrycznej. W łazience przygotowany punkt elektryczny pod grzejnik drabinowy (do indywidualnego montażu przez Klienta) - instalacja wodno - kanalizacyjna ( wyposażenie kuchni i łazienek do indywidualnego montażu przez klienta) - instalacja centralnego ogrzewania oraz ciepłej wody użytkowej zasilana przez piec gazowy dwufunkcyjny, ogrzewanie podłogowe - instalacja TV podłączona do anteny zbiorczej - z jednym gniazdem - instalacja domofonowa (aparat wideodomofony naścienny) - instalacja internetowa z jednym gniazdem - instalacja wentylacji grawitacyjnej - instalacja klimatyzacji (bez jednostki zewnętrznej i wewnętrznej) - jeden punkt OGRÓDKI: - ogródki na parterze wydzielone podstawowym ogrodzeniem panelowym niskim, bez podmurówki Biuro pomaga bezpiecznie przeprowadzić transakcję. W celu uzyskania informacji zapraszam do kontaktu , Maria Śmiech Tel: 500 - 673 - 615 E - mail: maria@sadurscy.pl ::DODATKOWE INFORMACJE | Kategoria oferty: Mieszkania dla rodzin z dziećmi | Rodzaj budynku: szeregowiec | Głośność: idealnie ciche | Widok: na inne budynki | Gaz: jest | Woda: piec gazowy dwufunkcyjny | Dojazd: asfalt | Otoczenie: osiedle | Ogrzewanie: inne | Komunikacja publ.: autobus | Odległość do komunikacji publicznej [m]: 200 | Odl. do sklepu [m]: 200 | Odl. do szkoły [m]: 2000 | Odl. do przedszkola [m]: 2000 | Winda: NIE | Rodzaj mieszkania: jednopoziomowe | Garaż: miejsce garażowe | Stan lokalu: deweloperski | Okna: PCV 3 komorowe | Instalacje: dobre | Powierzchnia użytkowa [m2]: 62,1900 | Rok budowy: 2024 | Liczba pokoi: 3 | Liczba sypialni: 2 | Powierzchnia pokoi [m2]: 29.33; 10.75; 9.03 | Podłogi pokoi: wylewka | Ściany pokoi: inne | Typ kuchni: aneks kuchenny - połączony z salonem | Rodzaj kuchni: aneks kuchenny połączony z jadalnią i salonem | Podłoga kuchni: wylewka | Typ łazienki: razem z wc | Liczba łazienek: 1 | Powierzchnia łazienki [m2]: 4.44 | Podłoga łazienki: wylewka | Ściany łazienki: inne | Liczba przedpokoi: 1 | Powierzchnia przedpokoi [m2]: 8.64 | Podłoga przedpokoi: wylewka | Ściany przedpokoi: inne | ::LINK DO STRONY | sadurscy.pl/offer/BS2-MS-305945 ::KONTAKT DO AGENTA | Maria Śmiech | +48 500-673-615 | maria@sadurscy.pl ::DANE BIURA | Oddział BS2, Rynek Pierwotny | Przewóz 47 | 30-081 Kraków | 12 630-90-45 -------------------------- ::GRATIS | Nasza prowizja zawiera: koszt przedwstępnej notarialnej umowy sprzedaży nieruchomości z rynku wtórnego. ::GWARANCJA | Gwarancja zwrotu zadatku. Więcej informacji na sadurscy.pl/zwrot-zadatku/ | Oferta wysłana z systemu Galactica Virgo
Ogrzewanie
Jest
Informacje dodatkowe
Łazienka z WC
Lokalizacja
BS2-MS-305945-9









